TD型斗式提升機是膠帶提升機,本公司產品根據斗子寬度可分四個型號:TD160、TD250、TD350、TD450,可采用深斗淺斗滿足不同的生產需求,最大能輸送69.6m3/h物料,提升高度為4-30m。傳動裝置TD型斗提升機的傳動裝置有兩種形式分別配有YZ型減速器ZQ(或YY)型減速器。YZ型軸減速器直接裝在主軸軸頭上,省去了傳動平臺、聯軸器等,使結構緊湊、重量輕,而且其內部帶有異型輥逆止器,逆止可靠。該減速器噪音低,運轉平穩,并隨主軸浮動,可消除安裝應力。TD型斗式提升機的牽引件為橡膠帶,料斗以一定的間隔固定在橡膠帶上,橡膠帶分別繞過提升機頭部和底部的滾筒,構成具有上升有載分支和下降無載分支的閉合環形系統;工作時,布置在提升機頭部的驅動裝置通過頭部滾筒將動力傳給橡膠帶和料斗,物料從提升機底部的進料口進入料斗,料斗將物料提升至頭部的卸料口,在離心力和重力的共同作用下,料斗中的物料經卸料口卸出。
1、采用流入式喂料、混合或離心式卸料,且料斗為大容量密集型布置,在物料提升時基本無回料和挖料現象,無用功損耗小,驅動功率相對較?。?
2、提升范圍廣,對物料的種類、特性要求少,可廣泛用于提升一般粉狀、小顆粒狀物料等;
3、可根據物料特性和提升要求,靈活選取混合式、離心式等多種卸料方式;
4、在密閉空間內輸送物料,且在殼體、檢修門處均設置有密封裝置,無粉塵外泄,清潔、環保。
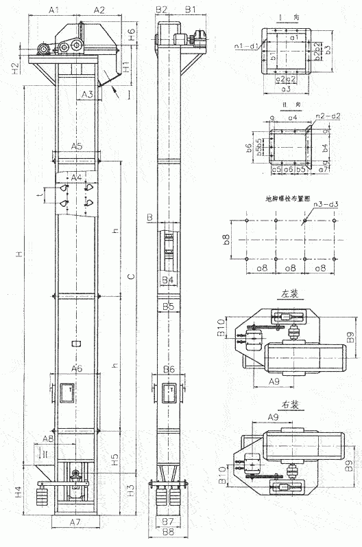
TD型斗式提升機主要由驅動裝置、上部區段、料斗與橡膠帶、中殼體、帶檢修門的中殼體、下部區段等組成,其主要結構特點是:采用橡膠帶作為牽引構件,具有自重小、撓性好、運行平穩、磨損小的特點。殼體之間、檢修門與殼體之間處均設置有密封裝置,保證無粉塵外泄,清潔、環保。機殼和頭罩設有多個檢修門,一旦出現故障或者需要更換料斗等易損件時,可以便捷的進行檢修或更換。在傳統裝置內部設有高可靠性的逆止機構,在防止牽引件和載料料斗逆行的同時,使傳動裝置整體結構緊湊、占用空間小。中部殼體均為折彎構件焊接而成,在提高機殼整體剛度的同時,使機殼各段節具有良好的通用性和互換性,保證組裝完畢后,機殼具有良好的垂直度。在底部設有張緊機構,保證工作時皮帶有足夠的預緊力;同時在底部滾筒裝置中帶有自動調心機構,以防止滾筒受到不均勻拉力后發生傾斜,進而造成設備故障。
















